Shima Kominka
Nantan City, Kyoto Pref.
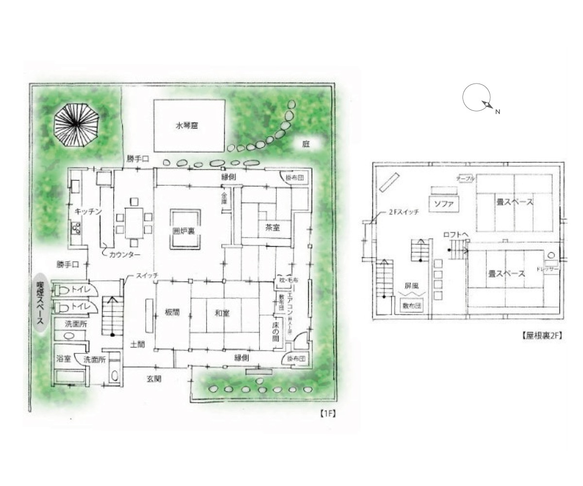
Miyama Town in Nantan City, northwest of Kyoto, is known at home and abroad for its many preserved thatched-roof Kominka. While the well-known “Kayabuki-no-Sato” lies nearby, this property is located just south of the Shizuhara settlement, about 5 kilometers west of that village.This Kominka, situated on the southern edge of Shizuhara’s center, is a nationally registered tangible cultural property and is believed to date from the early 19th century. Framed by rice paddies at the front and satoyama hills at the rear, the setting embodies the quintessential landscape of traditional Japanese farmhouses and rural life, making the surroundings as precious as the building itself.Though set in a richly natural environment of nearby mountains and the Yura River, the property remains accessible: a little over an hour by car or about two hours by public transport to central Kyoto. It is best suited for those who prioritize a peaceful, nature-surrounded lifestyle over urban convenience.
