Photos

Main House 1F and exterior




Main House 2F

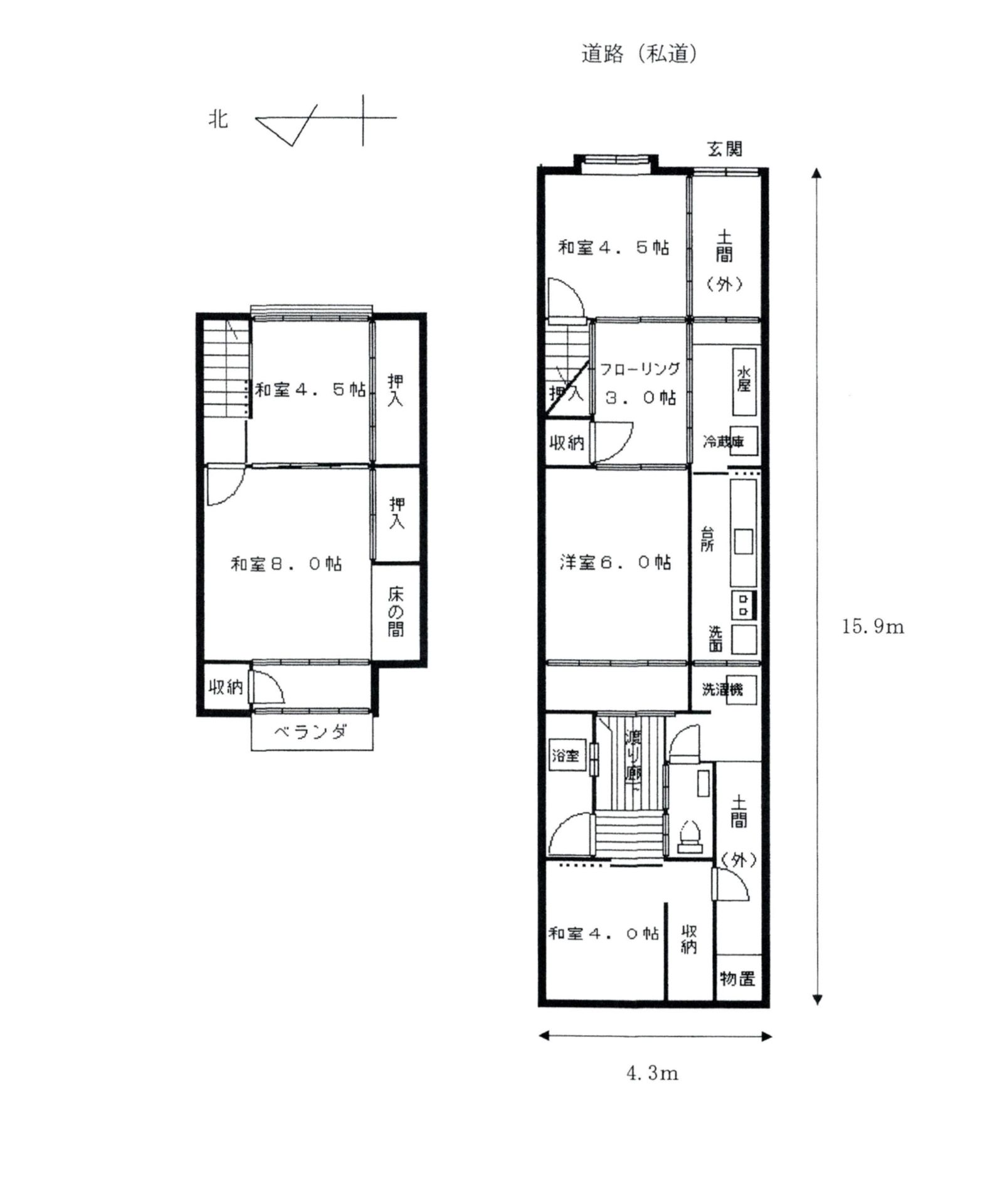
Floor Plan

Main House

Main House 1F and 2F

General Info

Price 35,800,000 JPY
Property name Shimofusa Kyo-Machiya
Property No. 65333
Location 34-14 Koyama-shimofusa Cho, Kita Ward, Kyoto City, Kyoto Pref.
Land area 79.57 sqm
Floor area 1F: 37.35 sqm, 2F: 28.76 sqm (There are some additional unregistered parts)
Layout 4DK (4 rooms, Dining room and kitchen)
Year Built Unknown (There are records of it being built before 1948)
Parking spaces None
Public Transport 4 minutes walk from Kuramaguchi Station on the Karasuma Line of the Kyoto City Subway.
30 minutes walk from Demachiyanagi Station on the Keihan Oto Line.
Topography Flat
Land rights Ownership
Water supply Public Water
Sewerage system Public Sewer
Gas supply City gas
Electricity supply Available
Use districts Category 1 Residential districts
Urban planning Urbanized area
Adjacent road A 1.1m wide Unofficial Road borders the property on the east side for 4.5m.
Private road burden
Set back obligation
Usage Status Vacant
Property Tax
Note - Reconstruction is not possible as the only road access is under 2m wide (non-road).
- Neighborhood association fee is about 36,000 yen per year, and street light electricity costs are about 2,400 yen per year. Additional cost for pruning alley plants is also required.
Please note that KORYOYA is not a real estate company but a portal site that connects the buyer to the local real estate agent and the owner. Please have a look at our Flow & Services section to see the services that we provide.

Inquire About Property

We will get back to you within 2-3 days. Please remember to put down the property name or number in the contact form.

Partner Real Estate Company

You can also contact our partner real estate agent directly for detail (In Japanese only).

CONTEMPORARY COCOON ROOM702 Co., Ltd.

110-4 Kitashirakawa-ogura Cho, Sakyo Ward, Kyoto City, Kyoto Pref.


Contact Realtor

Google Map

Why KORYOYA houses?

The traditional Japanese houses listed on KORYOYA are all built before 1950 with the traditional construction method.

The traditional method is the result of more than a thousand years of past carpenters passing down their efforts and wisdoms. As no new houses can be built with the traditional construction method under current law, the high craftsmanship is in danger of becoming a dying art.

Flow & Services

The purchasing flow and the types of services you may need depends on factors such as where you live, your ability to communicate in Japanese, and your intended use of the property.

Contact Us